< Previous   Next >

2014 - Mazda6 - Body and Accessories

PUSH BUTTON START SYSTEM [ADVANCED KEYLESS ENTRY SYSTEM]

Outline

Function

Structural View

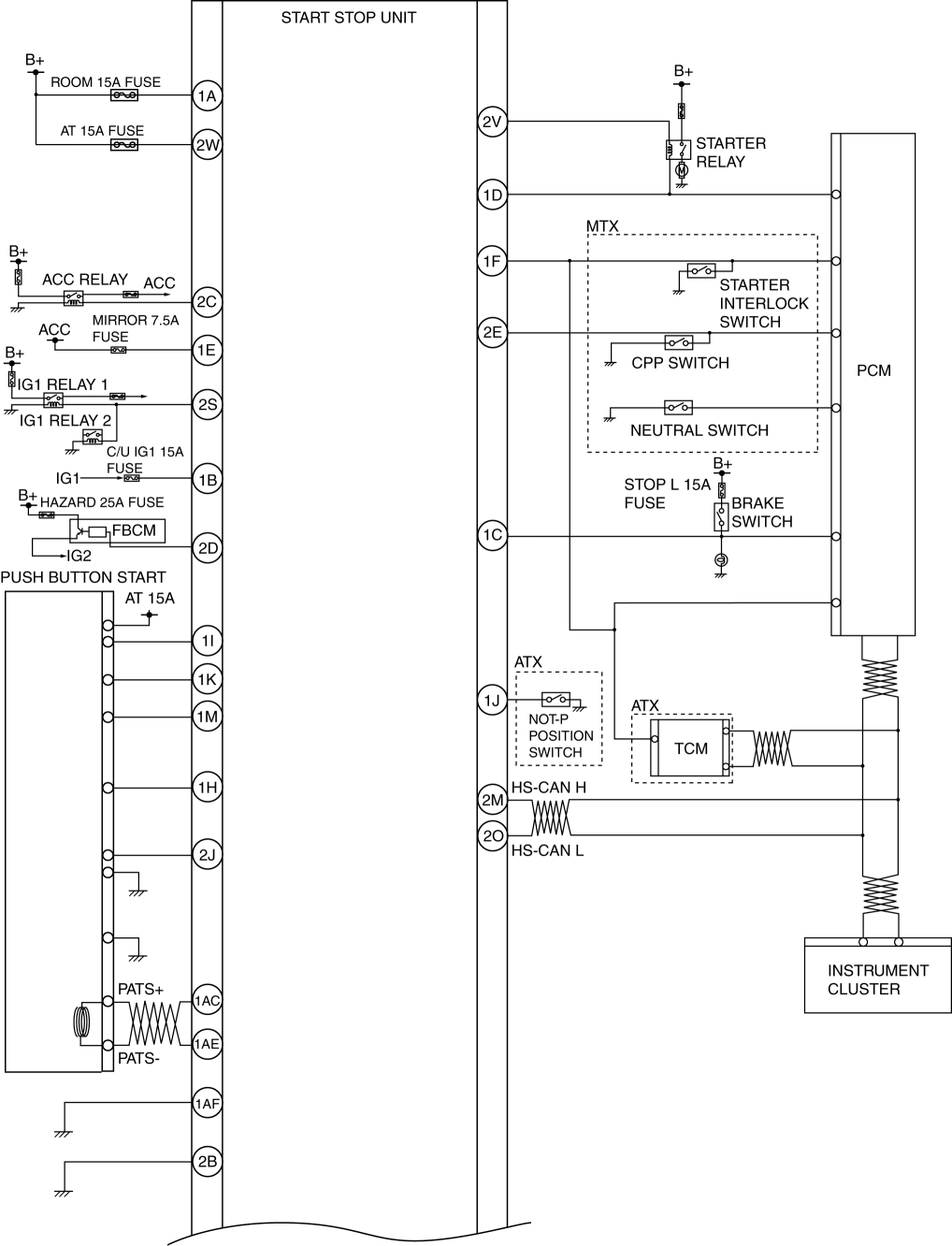
System Wiring Diagram

Operation

Remote transmitter verification
1. When the push button start is pressed, a push button start signal is input to the start stop unit.
2. When the start stop unit detects a push button start signal, it sends a request outgoing command signal to the LF control unit.
3. When the LF control unit detects the request outgoing command signal, it sends a request signal using all the keyless antennas in the vehicle interior.
4. The remote transmitter receives the request signal from the interior keyless antennas, and transmits ID data to the keyless receiver.
5. The keyless receiver transmits the received ID data to the start stop unit.
6. The start stop unit verifies the ID data and if it matches, the power supply is switched to illuminate the push button start indicator light (amber). For details on the power supply switching, refer to POWER SUPPLY SWITCHING.

Engine-start operation
Guidance function


Condition

LCD display

Ignition is switched ON (engine off) from OFF (LOCK) without depressing clutch pedal (MTX)

Ignition is switched ON (engine off) from OFF (LOCK) without depressing brake pedal (ATX)

Ignition is switched ON (engine off) and selector lever is not in P position when pressing push button (ATX)




Condition

Instrument cluster

Push button start

KEY indicator light (green)

KEY warning light (red)

LCD display

Indicator light (green)

Engine start conditions are met

On

On

ID data cannot be verified

Flashes

(MTX)

(ATX)




< Previous   Next >
Back to Top
© 2012 Mazda North American Operations, U.S.A.